На Дніпропетровщині збудують нове протирадіаційне укриття: особливості проєкту
У Покрові в одному з ліцеїв збудують підземні класи на 900 осіб.

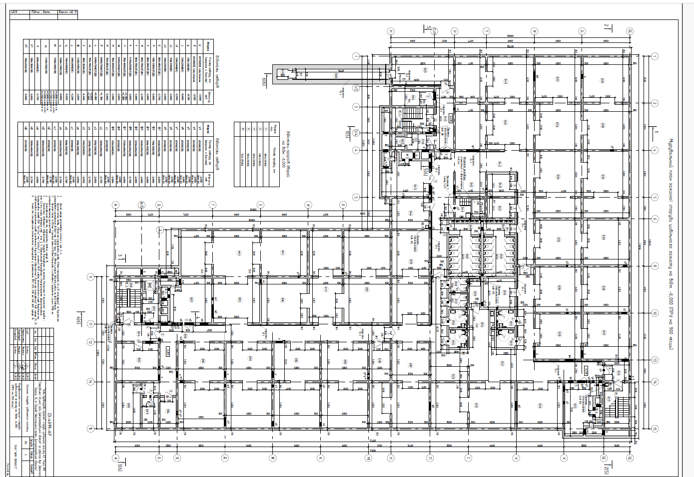
У Покровському ліцеї №8 у Дніпропетровській області збудують особливе шкільне укриття.
Відповідний проєкт оприлюднений на порталі Цифрової екосистеми для підзвітного управління відновленням "DREAM".
Також про нього розповіли у Міністерстві відновлення України.
Передбачається зведення підземної споруди з трьома евакуаційними виходами, яку можна буде використовувати як у мирний час, так і в особливий.

Укриття буде облаштовано для 900 осіб. Загалом у Покровському ліцеї №8 навчалося майже 400 учнів, отже користуватися укриттям зможуть викладачі та учні ще двох навчальних закладів, які розташовані поруч.
ПРУ (протирадіаційне укриття - ред.) являє собою окремо розташовану підземну монолітну залізобетонну споруду зтрьома евакуаційними виходами сходових клітин на поверхню землі. Входи обладнані захисно-герметичними дверима, - йдеться в описі проєкту.

Укриттям можуть користуватися особи з інвалідністю та маломобільні групи - для них забезпечується комплекс заходів для вільного пересування в зонах спеціально передбачених для відвідування такими особами. Буде встановлено підйомник для вертикального переміщення. А санвузли будуть оснащені спеціальним обладнанням.
Проєкти деяких кімнат, які облаштовуватимуть всередині, вже оприлюднені. Зокрема вже відомо, що усередині будуть тири, кімнати для коворкінгу, а також зали для лікувальної фізкультури.
Для мирного часу:
[gallery columns="2" size="medium" ids="1376582,1376586"]
Для особливого часу:
[gallery size="medium" ids="1376592,1376596,1376598"]
Загальний бюджет проєкту - 148 мільйонів гривень.
Наразі всі договори для побудування укладені на 100%, поставок виконано - на 30%, оплачених рахунків - 28,64%.
Завершити будівництво планують до кінця 2024 року.
Читайте також: