Аджамская и Галушковская: в Днепре появятся новые улицы
В Днепре могут появится девять новых улиц.

Так, девяти новым проездам собираются присвоить наименования. Расположены новые улицы будут в двух районах города: Амур-Нижнеднепровском и Новокодакском.
Названия предложила комиссия по вопросам наименований и переименований городских топонимов. Об этом сообщается на сайте Днепровского городского совета.
Так, в Днепре могут появиться следующие улицы:
Амур-Нижнеднепровский район:
- улица Аджамская (в районе переулка Балканского и улицы Седнева);
- улица Сновская (в районе переулка Балканского и улицы Седнева);
- улица Карпенкова (в районе улиц Белградской и Рабкоровской);
- улица Плесовая (в районе улиц Белградской и Рабкоровской);
- улица Галушковская (в районе улиц Дмитренко и Передовой).
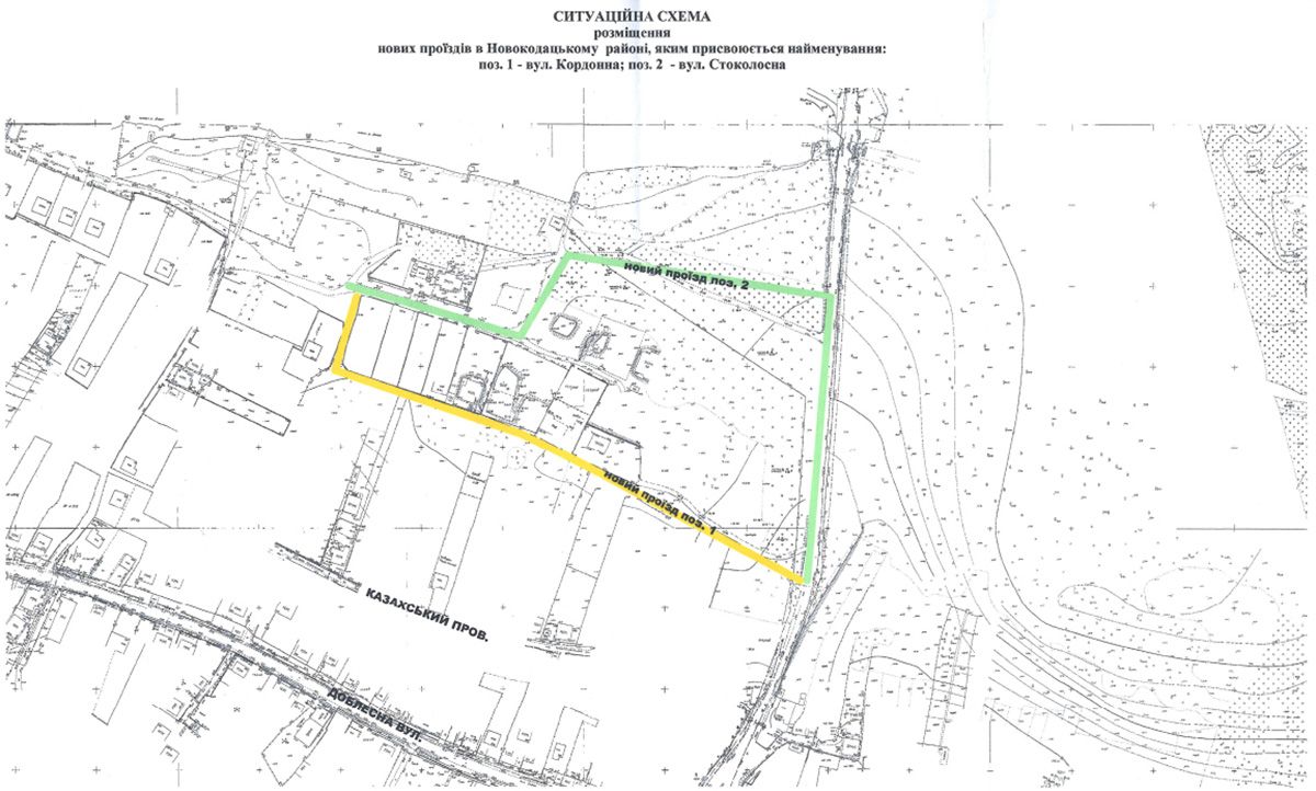
Новокодакский район:
- улица Иоанновская (в районе улицы Нарвской);
- улица Миртовая (в районе улицы Нарвской);
- улица Кордонная (в районе переулка Казахского);
- улица Стоколосная (в районе переулка Казахского).
Отмечается, что решение должны рассмотреть на следующей сессии Днепровского горсовета.





Читайте также: